With triple gables and a welcoming covered porch, the Stillwater continues to be a popular plan with local homeowners because of its attractive exterior. Can you picture hanging flower baskets or a small bench seat on the porch? Stop imagining—start building!
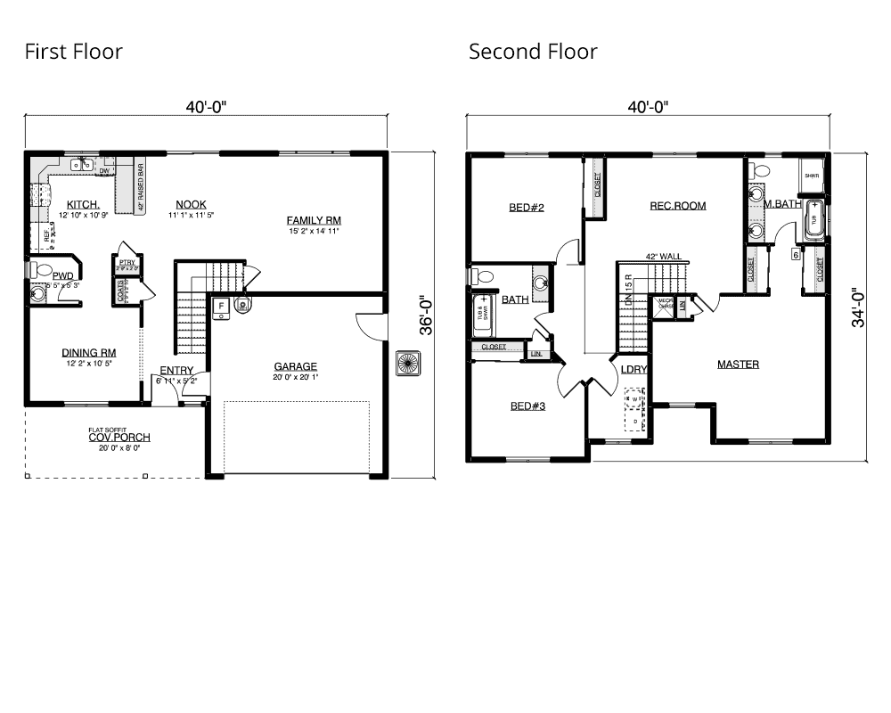
This two-story home plan provides over 2100 square feet, 3 bedrooms, and 2 1/2 baths, making it a perfect fit for larger families. The main living area downstairs features an open family room, dining nook, and kitchen area. The kitchen offers plenty of space, a raised bar for extra seating, and a separate pantry closet. There’s also a formal dining room for larger gatherings or dinner parties.
The upstairs of this home plan has many impressive features. There is an incredibly spacious master suite with walk-through closets and a master bathroom that includes double sinks and a separate shower and tub. There are also two additional bedrooms, a large main bathroom, a laundry room, and a massive rec room that families will love. If you are looking for a timeless design with a practical layout, check out the Stillwater.
Note: Pricing may vary based on build location. Land, site prep, utilities, and some homeowner items are not included in the price.
Learn more about what is and isn’t included in our price.
2119
3
2.5
2
40' x 36'
As on-your-lot custom home builders with years of experience, True Built Home has been successfully helping families build their customized dream homes across western Washington and Oregon.
We currently build in western Washington and parts of western Oregon. Typically, we only build within 100 miles of our branch locations. Please view our Build Area Map to see if we cover your location. The main areas we build in are color-coded on the map. If your area is not fully covered in our build area, please contact us and we can review if building in your location would be possible for us.
Definitely! All of our home plans are customizable. Want to add extra square footage, a daylight basement, a 3rd car garage bay, 9 foot ceilings, or something else? We have an in-house design team that will work with you to make your home plan your dream home! Contact us to get started.
Yes, we can! Most of our home plans can usually be customized to add a daylight basement. Contact us and let us know which plan you have in mind, where you want to build, and any details about your land.
There are many factors to consider when building a home, such as weather, site accessibility, labor availability, and more. Since construction can be a complicated process with many moving parts, we schedule 270 days or more from the time the foundation is poured. That’s just an estimated timeline, and it could take more time or less, depending on the complexity of your project.
While we don’t offer in-house financing, we do work with a variety of lenders to make this easy for you. We have preferred lenders that we work with on a regular basis. These lenders specialize in traditional construction loans, while some specialize in FHA or VA loans. Please view our list of our preferred lenders who can help you get started with the loan process.
Browse all ADU Homes Plans
ADU Homes for sale in Washington
ADU Homes for sale in Oregon
Washington:
ADU Homes Wahkiakum County
ADU Homes Rosburg WA
ADU Homes Skamokawa WA
ADU Homes Cathlamet WA
ADU Homes Thurston County
ADU Homes Grand Mound WA
ADU Homes Tenino WA
ADU Homes Lacey WA
ADU Homes Tumwater WA
ADU Homes Rochester WA
ADU Homes Yelm WA
ADU Homes Olympia WA
ADU Homes Snohomish County
ADU Homes Stanwood WA
ADU Homes Granite Falls WA
ADU Homes Monroe WA
ADU Homes Lake Stevens WA
ADU Homes Arlington WA
ADU Homes Marysville WA
ADU Homes Everett WA
ADU Homes Skamania County
ADU Homes Stevenson WA
ADU Homes Carson WA
ADU Homes North Bonneville WA
ADU Homes Skagit County
ADU Homes Concrete WA
ADU Homes Burlington WA
ADU Homes Sedro-woolley WA
ADU Homes Mount Vernon WA
ADU Homes Anacortes WA
ADU Homes Pierce County
ADU Homes Orting WA
ADU Homes Sumner WA
ADU Homes Bonney Lake WA
ADU Homes Spanaway WA
ADU Homes DuPont WA
ADU Homes Roy WA
ADU Homes Buckley WA
ADU Homes Graham WA
ADU Homes Eatonville WA
ADU Homes Lakebay WA
ADU Homes Gig Harbor WA
ADU Homes Lakewood WA
ADU Homes Puyallup WA
ADU Homes Tacoma WA
ADU Homes Pacific County
ADU Homes Tokeland WA
ADU Homes Ilwaco WA
ADU Homes Long Beach WA
ADU Homes Raymond WA
ADU Homes Mason County
ADU Homes Grapeview WA
ADU Homes Skokomish WA
ADU Homes Union WA
ADU Homes Hoodsport WA
ADU Homes Belfaire WA
ADU Homes Shelton WA
ADU Homes Lewis County
ADU Homes Mossyrock WA
ADU Homes Winlock WA
ADU Homes Packwood WA
ADU Homes Chehalis WA
ADU Homes Centralia WA
ADU Homes Klickitat County
ADU Homes White Salmon WA
ADU Homes Lyle WA
ADU Homes Goldendale WA
ADU Homes Kittitas County
ADU Homes Easton WA
ADU Homes Cle Elum WA
ADU Homes Kitsap County
ADU Homes Silverdale WA
ADU Homes Port Orchard WA
ADU Homes Bainbridge Island WA
ADU Homes Bremerton WA
ADU Homes Poulsbo WA
ADU Homes King County
ADU Homes Bothell WA
ADU Homes Issaquah WA
ADU Homes Redmond WA
ADU Homes Snoqualmie WA
ADU Homes North Bend WA
ADU Homes Renton WA
ADU Homes Bellevue WA
ADU Homes Seattle WA
ADU Homes Island County
ADU Homes Coupeville WA
ADU Homes Oak Harbor WA
ADU Homes Camano WA
ADU Homes Whidbey Island WA
ADU Homes Grays Harbor County
ADU Homes Elma WA
ADU Homes Hoquiam WA
ADU Homes Montesano WA
ADU Homes Aberdeen WA
ADU Homes Westport WA
ADU Homes Ocean Shores WA
ADU Homes Cowlitz County
ADU Homes Kalama WA
ADU Homes Kelso WA
ADU Homes Castle Rock WA
ADU Homes Longview WA
ADU Homes Clark County
ADU Homes Ridgefield WA
ADU Homes Camas WA
ADU Homes Battle Ground WA
ADU Homes Vancouver WA
Oregon:
ADU Homes Yamhill County
ADU Homes Sheridan OR
ADU Homes Newburg OR
ADU Homes McMinnville OR
ADU Homes Washington County
ADU Homes Forest Grove OR
ADU Homes Sherwood OR
ADU Homes Tigard OR
ADU Homes Beaverton OR
ADU Homes Hillsboro OR
ADU Homes Tillamook County
ADU Homes Nehalem OR
ADU Homes Pacific City OR
ADU Homes Tillamook OR
ADU Homes Polk County
ADU Homes Independence OR
ADU Homes Monmouth OR
ADU Homes Dallas OR
ADU Homes Multnomah County
ADU Homes Troutdale OR
ADU Homes Gresham OR
ADU Homes Portland OR
ADU Homes Marion County
ADU Homes Silverton OR
ADU Homes Keizer OR
ADU Homes Woodburn OR
ADU Homes Salem OR
ADU Homes Linn County
ADU Homes Brownsville OR
ADU Homes Lebanon OR
ADU Homes Sweet Home OR
ADU Homes Albany OR
ADU Homes Lincoln County
ADU Homes Depoe Bay OR
ADU Homes Waldport OR
ADU Homes Yachats OR
ADU Homes Newport OR
ADU Homes Lincoln City OR
ADU Homes Lane County
ADU Homes Creswell OR
ADU Homes Florence OR
ADU Homes Cottage Grove OR
ADU Homes Springfield OR
ADU Homes Eugene OR
ADU Homes Hood River County
ADU Homes Mt. Hood OR
ADU Homes Odell OR
ADU Homes Hood River OR
ADU Homes Columbia County
ADU Homes Clatskanie OR
ADU Homes Rainier OR
ADU Homes Columbia City OR
ADU Homes Scappoose OR
ADU Homes St. Helens OR
ADU Homes Clatsop County
ADU Homes Grand Rapids OR
ADU Homes Warrenton OR
ADU Homes Cannon Beach OR
ADU Homes Seaside OR
ADU Homes Gearhart OR
ADU Homes Astoria OR
ADU Homes Clackamas County
ADU Homes Gladstone OR
ADU Homes Canby OR
ADU Homes Happy Valley OR
ADU Homes Milwaukie OR
ADU Homes Wilsonville OR
ADU Homes West Linn OR
ADU Homes Tualatin OR
ADU Homes Oregon City OR
ADU Homes Lake Oswego OR
ADU Homes Clackamas OR
ADU Homes Benton County
ADU Homes Monroe OR
ADU Homes Philomath OR
ADU Homes Corvallis OR
Browse all Rambler Homes Plans
Rambler Homes for sale in Washington
Rambler Homes for sale in Oregon
Washington:
Rambler Homes Wahkiakum County
Rambler Homes Rosburg WA
Rambler Homes Skamokawa WA
Rambler Homes Cathlamet WA
Rambler Homes Thurston County
Rambler Homes Grand Mound WA
Rambler Homes Tenino WA
Rambler Homes Lacey WA
Rambler Homes Tumwater WA
Rambler Homes Rochester WA
Rambler Homes Yelm WA
Rambler Homes Olympia WA
Rambler Homes Snohomish County
Rambler Homes Stanwood WA
Rambler Homes Granite Falls WA
Rambler Homes Monroe WA
Rambler Homes Lake Stevens WA
Rambler Homes Arlington WA
Rambler Homes Marysville WA
Rambler Homes Everett WA
Rambler Homes Skamania County
Rambler Homes Stevenson WA
Rambler Homes Carson WA
Rambler Homes North Bonneville WA
Rambler Homes Skagit County
Rambler Homes Concrete WA
Rambler Homes Burlington WA
Rambler Homes Sedro-woolley WA
Rambler Homes Mount Vernon WA
Rambler Homes Anacortes WA
Rambler Homes Pierce County
Rambler Homes Orting WA
Rambler Homes Sumner WA
Rambler Homes Bonney Lake WA
Rambler Homes Spanaway WA
Rambler Homes DuPont WA
Rambler Homes Roy WA
Rambler Homes Buckley WA
Rambler Homes Graham WA
Rambler Homes Eatonville WA
Rambler Homes Lakebay WA
Rambler Homes Gig Harbor WA
Rambler Homes Lakewood WA
Rambler Homes Puyallup WA
Rambler Homes Tacoma WA
Rambler Homes Pacific County
Rambler Homes Tokeland WA
Rambler Homes Ilwaco WA
Rambler Homes Long Beach WA
Rambler Homes Raymond WA
Rambler Homes Mason County
Rambler Homes Grapeview WA
Rambler Homes Skokomish WA
Rambler Homes Union WA
Rambler Homes Hoodsport WA
Rambler Homes Belfaire WA
Rambler Homes Shelton WA
Rambler Homes Lewis County
Rambler Homes Mossyrock WA
Rambler Homes Winlock WA
Rambler Homes Packwood WA
Rambler Homes Chehalis WA
Rambler Homes Centralia WA
Rambler Homes Klickitat County
Rambler Homes White Salmon WA
Rambler Homes Lyle WA
Rambler Homes Goldendale WA
Rambler Homes Kittitas County
Rambler Homes Easton WA
Rambler Homes Cle Elum WA
Rambler Homes Kitsap County
Rambler Homes Silverdale WA
Rambler Homes Port Orchard WA
Rambler Homes Bainbridge Island WA
Rambler Homes Bremerton WA
Rambler Homes Poulsbo WA
Rambler Homes King County
Rambler Homes Bothell WA
Rambler Homes Issaquah WA
Rambler Homes Redmond WA
Rambler Homes Snoqualmie WA
Rambler Homes North Bend WA
Rambler Homes Renton WA
Rambler Homes Bellevue WA
Rambler Homes Seattle WA
Rambler Homes Island County
Rambler Homes Coupeville WA
Rambler Homes Oak Harbor WA
Rambler Homes Camano WA
Rambler Homes Whidbey Island WA
Rambler Homes Grays Harbor County
Rambler Homes Elma WA
Rambler Homes Hoquiam WA
Rambler Homes Montesano WA
Rambler Homes Aberdeen WA
Rambler Homes Westport WA
Rambler Homes Ocean Shores WA
Rambler Homes Cowlitz County
Rambler Homes Kalama WA
Rambler Homes Kelso WA
Rambler Homes Castle Rock WA
Rambler Homes Longview WA
Rambler Homes Clark County
Rambler Homes Ridgefield WA
Rambler Homes Camas WA
Rambler Homes Battle Ground WA
Rambler Homes Vancouver WA
Oregon:
Rambler Homes Yamhill County
Rambler Homes Sheridan OR
Rambler Homes Newburg OR
Rambler Homes McMinnville OR
Rambler Homes Washington County
Rambler Homes Forest Grove OR
Rambler Homes Sherwood OR
Rambler Homes Tigard OR
Rambler Homes Beaverton OR
Rambler Homes Hillsboro OR
Rambler Homes Tillamook County
Rambler Homes Nehalem OR
Rambler Homes Pacific City OR
Rambler Homes Tillamook OR
Rambler Homes Polk County
Rambler Homes Independence OR
Rambler Homes Monmouth OR
Rambler Homes Dallas OR
Rambler Homes Multnomah County
Rambler Homes Troutdale OR
Rambler Homes Gresham OR
Rambler Homes Portland OR
Rambler Homes Marion County
Rambler Homes Silverton OR
Rambler Homes Keizer OR
Rambler Homes Woodburn OR
Rambler Homes Salem OR
Rambler Homes Linn County
Rambler Homes Brownsville OR
Rambler Homes Lebanon OR
Rambler Homes Sweet Home OR
Rambler Homes Albany OR
Rambler Homes Lincoln County
Rambler Homes Depoe Bay OR
Rambler Homes Waldport OR
Rambler Homes Yachats OR
Rambler Homes Newport OR
Rambler Homes Lincoln City OR
Rambler Homes Lane County
Rambler Homes Creswell OR
Rambler Homes Florence OR
Rambler Homes Cottage Grove OR
Rambler Homes Springfield OR
Rambler Homes Eugene OR
Rambler Homes Hood River County
Rambler Homes Mt. Hood OR
Rambler Homes Odell OR
Rambler Homes Hood River OR
Rambler Homes Columbia County
Rambler Homes Clatskanie OR
Rambler Homes Rainier OR
Rambler Homes Columbia City OR
Rambler Homes Scappoose OR
Rambler Homes St. Helens OR
Rambler Homes Clatsop County
Rambler Homes Grand Rapids OR
Rambler Homes Warrenton OR
Rambler Homes Cannon Beach OR
Rambler Homes Seaside OR
Rambler Homes Gearhart OR
Rambler Homes Astoria OR
Rambler Homes Clackamas County
Rambler Homes Gladstone OR
Rambler Homes Canby OR
Rambler Homes Happy Valley OR
Rambler Homes Milwaukie OR
Rambler Homes Wilsonville OR
Rambler Homes West Linn OR
Rambler Homes Tualatin OR
Rambler Homes Oregon City OR
Rambler Homes Lake Oswego OR
Rambler Homes Clackamas OR
Rambler Homes Benton County
Rambler Homes Monroe OR
Rambler Homes Philomath OR
Rambler Homes Corvallis OR
Browse all Multi-Level Homes Plans
Multi-Level Homes for sale in Washington
Multi-Level Homes for sale in Oregon
Washington:
Multi-Level Homes Wahkiakum County
Multi-Level Homes Rosburg WA
Multi-Level Homes Skamokawa WA
Multi-Level Homes Cathlamet WA
Multi-Level Homes Thurston County
Multi-Level Homes Grand Mound WA
Multi-Level Homes Tenino WA
Multi-Level Homes Lacey WA
Multi-Level Homes Tumwater WA
Multi-Level Homes Rochester WA
Multi-Level Homes Yelm WA
Multi-Level Homes Olympia WA
Multi-Level Homes Snohomish County
Multi-Level Homes Stanwood WA
Multi-Level Homes Granite Falls WA
Multi-Level Homes Monroe WA
Multi-Level Homes Lake Stevens WA
Multi-Level Homes Arlington WA
Multi-Level Homes Marysville WA
Multi-Level Homes Everett WA
Multi-Level Homes Skamania County
Multi-Level Homes Stevenson WA
Multi-Level Homes Carson WA
Multi-Level Homes North Bonneville WA
Multi-Level Homes Skagit County
Multi-Level Homes Concrete WA
Multi-Level Homes Burlington WA
Multi-Level Homes Sedro-woolley WA
Multi-Level Homes Mount Vernon WA
Multi-Level Homes Anacortes WA
Multi-Level Homes Pierce County
Multi-Level Homes Orting WA
Multi-Level Homes Sumner WA
Multi-Level Homes Bonney Lake WA
Multi-Level Homes Spanaway WA
Multi-Level Homes DuPont WA
Multi-Level Homes Roy WA
Multi-Level Homes Buckley WA
Multi-Level Homes Graham WA
Multi-Level Homes Eatonville WA
Multi-Level Homes Lakebay WA
Multi-Level Homes Gig Harbor WA
Multi-Level Homes Lakewood WA
Multi-Level Homes Puyallup WA
Multi-Level Homes Tacoma WA
Multi-Level Homes Pacific County
Multi-Level Homes Tokeland WA
Multi-Level Homes Ilwaco WA
Multi-Level Homes Long Beach WA
Multi-Level Homes Raymond WA
Multi-Level Homes Mason County
Multi-Level Homes Grapeview WA
Multi-Level Homes Skokomish WA
Multi-Level Homes Union WA
Multi-Level Homes Hoodsport WA
Multi-Level Homes Belfaire WA
Multi-Level Homes Shelton WA
Multi-Level Homes Lewis County
Multi-Level Homes Mossyrock WA
Multi-Level Homes Winlock WA
Multi-Level Homes Packwood WA
Multi-Level Homes Chehalis WA
Multi-Level Homes Centralia WA
Multi-Level Homes Klickitat County
Multi-Level Homes White Salmon WA
Multi-Level Homes Lyle WA
Multi-Level Homes Goldendale WA
Multi-Level Homes Kittitas County
Multi-Level Homes Easton WA
Multi-Level Homes Cle Elum WA
Multi-Level Homes Kitsap County
Multi-Level Homes Silverdale WA
Multi-Level Homes Port Orchard WA
Multi-Level Homes Bainbridge Island WA
Multi-Level Homes Bremerton WA
Multi-Level Homes Poulsbo WA
Multi-Level Homes King County
Multi-Level Homes Bothell WA
Multi-Level Homes Issaquah WA
Multi-Level Homes Redmond WA
Multi-Level Homes Snoqualmie WA
Multi-Level Homes North Bend WA
Multi-Level Homes Renton WA
Multi-Level Homes Bellevue WA
Multi-Level Homes Seattle WA
Multi-Level Homes Island County
Multi-Level Homes Coupeville WA
Multi-Level Homes Oak Harbor WA
Multi-Level Homes Camano WA
Multi-Level Homes Whidbey Island WA
Multi-Level Homes Grays Harbor County
Multi-Level Homes Elma WA
Multi-Level Homes Hoquiam WA
Multi-Level Homes Montesano WA
Multi-Level Homes Aberdeen WA
Multi-Level Homes Westport WA
Multi-Level Homes Ocean Shores WA
Multi-Level Homes Cowlitz County
Multi-Level Homes Kalama WA
Multi-Level Homes Kelso WA
Multi-Level Homes Castle Rock WA
Multi-Level Homes Longview WA
Multi-Level Homes Clark County
Multi-Level Homes Ridgefield WA
Multi-Level Homes Camas WA
Multi-Level Homes Battle Ground WA
Multi-Level Homes Vancouver WA
Oregon:
Multi-Level Homes Yamhill County
Multi-Level Homes Sheridan OR
Multi-Level Homes Newburg OR
Multi-Level Homes McMinnville OR
Multi-Level Homes Washington County
Multi-Level Homes Forest Grove OR
Multi-Level Homes Sherwood OR
Multi-Level Homes Tigard OR
Multi-Level Homes Beaverton OR
Multi-Level Homes Hillsboro OR
Multi-Level Homes Tillamook County
Multi-Level Homes Nehalem OR
Multi-Level Homes Pacific City OR
Multi-Level Homes Tillamook OR
Multi-Level Homes Polk County
Multi-Level Homes Independence OR
Multi-Level Homes Monmouth OR
Multi-Level Homes Dallas OR
Multi-Level Homes Multnomah County
Multi-Level Homes Troutdale OR
Multi-Level Homes Gresham OR
Multi-Level Homes Portland OR
Multi-Level Homes Marion County
Multi-Level Homes Silverton OR
Multi-Level Homes Keizer OR
Multi-Level Homes Woodburn OR
Multi-Level Homes Salem OR
Multi-Level Homes Linn County
Multi-Level Homes Brownsville OR
Multi-Level Homes Lebanon OR
Multi-Level Homes Sweet Home OR
Multi-Level Homes Albany OR
Multi-Level Homes Lincoln County
Multi-Level Homes Depoe Bay OR
Multi-Level Homes Waldport OR
Multi-Level Homes Yachats OR
Multi-Level Homes Newport OR
Multi-Level Homes Lincoln City OR
Multi-Level Homes Lane County
Multi-Level Homes Creswell OR
Multi-Level Homes Florence OR
Multi-Level Homes Cottage Grove OR
Multi-Level Homes Springfield OR
Multi-Level Homes Eugene OR
Multi-Level Homes Hood River County
Multi-Level Homes Mt. Hood OR
Multi-Level Homes Odell OR
Multi-Level Homes Hood River OR
Multi-Level Homes Columbia County
Multi-Level Homes Clatskanie OR
Multi-Level Homes Rainier OR
Multi-Level Homes Columbia City OR
Multi-Level Homes Scappoose OR
Multi-Level Homes St. Helens OR
Multi-Level Homes Clatsop County
Multi-Level Homes Grand Rapids OR
Multi-Level Homes Warrenton OR
Multi-Level Homes Cannon Beach OR
Multi-Level Homes Seaside OR
Multi-Level Homes Gearhart OR
Multi-Level Homes Astoria OR
Multi-Level Homes Clackamas County
Multi-Level Homes Gladstone OR
Multi-Level Homes Canby OR
Multi-Level Homes Happy Valley OR
Multi-Level Homes Milwaukie OR
Multi-Level Homes Wilsonville OR
Multi-Level Homes West Linn OR
Multi-Level Homes Tualatin OR
Multi-Level Homes Oregon City OR
Multi-Level Homes Lake Oswego OR
Multi-Level Homes Clackamas OR
Multi-Level Homes Benton County
Multi-Level Homes Monroe OR
Multi-Level Homes Philomath OR
Multi-Level Homes Corvallis OR
Browse all Multi-Generational Homes Plans
Multi-Generational Homes for sale in Washington
Multi-Generational Homes for sale in Oregon
Washington:
Multi-Generational Homes Wahkiakum County
Multi-Generational Homes Rosburg WA
Multi-Generational Homes Skamokawa WA
Multi-Generational Homes Cathlamet WA
Multi-Generational Homes Thurston County
Multi-Generational Homes Grand Mound WA
Multi-Generational Homes Tenino WA
Multi-Generational Homes Lacey WA
Multi-Generational Homes Tumwater WA
Multi-Generational Homes Rochester WA
Multi-Generational Homes Yelm WA
Multi-Generational Homes Olympia WA
Multi-Generational Homes Snohomish County
Multi-Generational Homes Stanwood WA
Multi-Generational Homes Granite Falls WA
Multi-Generational Homes Monroe WA
Multi-Generational Homes Lake Stevens WA
Multi-Generational Homes Arlington WA
Multi-Generational Homes Marysville WA
Multi-Generational Homes Everett WA
Multi-Generational Homes Skamania County
Multi-Generational Homes Stevenson WA
Multi-Generational Homes Carson WA
Multi-Generational Homes North Bonneville WA
Multi-Generational Homes Skagit County
Multi-Generational Homes Concrete WA
Multi-Generational Homes Burlington WA
Multi-Generational Homes Sedro-woolley WA
Multi-Generational Homes Mount Vernon WA
Multi-Generational Homes Anacortes WA
Multi-Generational Homes Pierce County
Multi-Generational Homes Orting WA
Multi-Generational Homes Sumner WA
Multi-Generational Homes Bonney Lake WA
Multi-Generational Homes Spanaway WA
Multi-Generational Homes DuPont WA
Multi-Generational Homes Roy WA
Multi-Generational Homes Buckley WA
Multi-Generational Homes Graham WA
Multi-Generational Homes Eatonville WA
Multi-Generational Homes Lakebay WA
Multi-Generational Homes Gig Harbor WA
Multi-Generational Homes Lakewood WA
Multi-Generational Homes Puyallup WA
Multi-Generational Homes Tacoma WA
Multi-Generational Homes Pacific County
Multi-Generational Homes Tokeland WA
Multi-Generational Homes Ilwaco WA
Multi-Generational Homes Long Beach WA
Multi-Generational Homes Raymond WA
Multi-Generational Homes Mason County
Multi-Generational Homes Grapeview WA
Multi-Generational Homes Skokomish WA
Multi-Generational Homes Union WA
Multi-Generational Homes Hoodsport WA
Multi-Generational Homes Belfaire WA
Multi-Generational Homes Shelton WA
Multi-Generational Homes Lewis County
Multi-Generational Homes Mossyrock WA
Multi-Generational Homes Winlock WA
Multi-Generational Homes Packwood WA
Multi-Generational Homes Chehalis WA
Multi-Generational Homes Centralia WA
Multi-Generational Homes Klickitat County
Multi-Generational Homes White Salmon WA
Multi-Generational Homes Lyle WA
Multi-Generational Homes Goldendale WA
Multi-Generational Homes Kittitas County
Multi-Generational Homes Easton WA
Multi-Generational Homes Cle Elum WA
Multi-Generational Homes Kitsap County
Multi-Generational Homes Silverdale WA
Multi-Generational Homes Port Orchard WA
Multi-Generational Homes Bainbridge Island WA
Multi-Generational Homes Bremerton WA
Multi-Generational Homes Poulsbo WA
Multi-Generational Homes King County
Multi-Generational Homes Bothell WA
Multi-Generational Homes Issaquah WA
Multi-Generational Homes Redmond WA
Multi-Generational Homes Snoqualmie WA
Multi-Generational Homes North Bend WA
Multi-Generational Homes Renton WA
Multi-Generational Homes Bellevue WA
Multi-Generational Homes Seattle WA
Multi-Generational Homes Island County
Multi-Generational Homes Coupeville WA
Multi-Generational Homes Oak Harbor WA
Multi-Generational Homes Camano WA
Multi-Generational Homes Whidbey Island WA
Multi-Generational Homes Grays Harbor County
Multi-Generational Homes Elma WA
Multi-Generational Homes Hoquiam WA
Multi-Generational Homes Montesano WA
Multi-Generational Homes Aberdeen WA
Multi-Generational Homes Westport WA
Multi-Generational Homes Ocean Shores WA
Multi-Generational Homes Cowlitz County
Multi-Generational Homes Kalama WA
Multi-Generational Homes Kelso WA
Multi-Generational Homes Castle Rock WA
Multi-Generational Homes Longview WA
Multi-Generational Homes Clark County
Multi-Generational Homes Ridgefield WA
Multi-Generational Homes Camas WA
Multi-Generational Homes Battle Ground WA
Multi-Generational Homes Vancouver WA
Oregon:
Multi-Generational Homes Yamhill County
Multi-Generational Homes Sheridan OR
Multi-Generational Homes Newburg OR
Multi-Generational Homes McMinnville OR
Multi-Generational Homes Washington County OR
Multi-Generational Homes Forest Grove OR
Multi-Generational Homes Sherwood OR
Multi-Generational Homes Tigard OR
Multi-Generational Homes Beaverton OR
Multi-Generational Homes Hillsboro OR
Multi-Generational Homes Tillamook County OR
Multi-Generational Homes Nehalem OR
Multi-Generational Homes Pacific City OR
Multi-Generational Homes Tillamook OR
Multi-Generational Homes Polk County OR
Multi-Generational Homes Independence OR
Multi-Generational Homes Monmouth OR
Multi-Generational Homes Dallas OR
Multi-Generational Homes Multnomah County OR
Multi-Generational Homes Troutdale OR
Multi-Generational Homes Gresham OR
Multi-Generational Homes Portland OR
Multi-Generational Homes Marion County OR
Multi-Generational Homes Silverton OR
Multi-Generational Homes Keizer OR
Multi-Generational Homes Woodburn OR
Multi-Generational Homes Salem OR
Multi-Generational Homes Linn County OR
Multi-Generational Homes Brownsville OR
Multi-Generational Homes Lebanon OR
Multi-Generational Homes Sweet Home OR
Multi-Generational Homes Albany OR
Multi-Generational Homes Lincoln County OR
Multi-Generational Homes Depoe Bay OR
Multi-Generational Homes Waldport OR
Multi-Generational Homes Yachats OR
Multi-Generational Homes Newport OR
Multi-Generational Homes Lincoln City OR
Multi-Generational Homes Lane County OR
Multi-Generational Homes Creswell OR
Multi-Generational Homes Florence OR
Multi-Generational Homes Cottage Grove OR
Multi-Generational Homes Springfield OR
Multi-Generational Homes Eugene OR
Multi-Generational Homes Hood River County OR
Multi-Generational Homes Mt. Hood OR
Multi-Generational Homes Odell OR
Multi-Generational Homes Hood River OR
Multi-Generational Homes Columbia County OR
Multi-Generational Homes Clatskanie OR
Multi-Generational Homes Rainier OR
Multi-Generational Homes Columbia City OR
Multi-Generational Homes Scappoose OR
Multi-Generational Homes St. Helens OR
Multi-Generational Homes Clatsop County OR
Multi-Generational Homes Grand Rapids OR
Multi-Generational Homes Warrenton OR
Multi-Generational Homes Cannon Beach OR
Multi-Generational Homes Seaside OR
Multi-Generational Homes Gearhart OR
Multi-Generational Homes Astoria OR
Multi-Generational Homes Clackamas County OR
Multi-Generational Homes Gladstone OR
Multi-Generational Homes Canby OR
Multi-Generational Homes Happy Valley OR
Multi-Generational Homes Milwaukie OR
Multi-Generational Homes Wilsonville OR
Multi-Generational Homes West Linn OR
Multi-Generational Homes Tualatin OR
Multi-Generational Homes Oregon City OR
Multi-Generational Homes Lake Oswego OR
Multi-Generational Homes Clackamas OR
Multi-Generational Homes Benton County OR
Multi-Generational Homes Monroe OR
Multi-Generational Homes Philomath OR
Multi-Generational Homes Corvallis OR